STAVEBNICE DOMU PUZZLE

STAVEBNICE DOMU PUZZLE – DŮM PRO STAVBU SVÉPOMOCÍ
Co Vám nabízíme
Revoluční řešení výstavby domu s finančně dostupnou variantou moderního bydlení od společnosti EUROPANEL. Jde o detailně promyšlenou stavebnici dílensky vyrobených částí domu a dodávku stavebních prvků pro stavbu svépomocí.
Dům Puzzle spojuje hned několik technologických inovací. Zcela nový způsob v navrhování domů a jejich variabilitu vnitřního uspořádání. Základy domu ze zemních vrutů za jeden den. Veškeré stavební konstrukce domu, včetně základové desky jsou postaveny suchou cestou z jednoho stavebního systému EUROPANEL. Zásadní technologický prvek domu je inovativní instalační jádro s koupelnou nabyté veškerou technikou pro celý dům. Skutečná stavebnice domu pro výstavbu svépomocí.
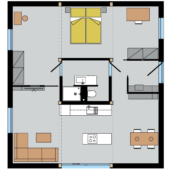
Rozměry domu 9,2 m x 8.6 m. Podlahová plocha 66 m2. Základní otevřená dispozice domu 1+KK s možností rozšíření na 3+KK
Pro koho je stavebnice domu určená
Stavebnice domu PUZZLE je ideálním řešením pro všechny, kteří si umí poradit s jednoduchou montáží. Pokud si umíte smontovat skříňky s IKEI, vymalovat, nebo položit plovoucí podlahu jste to právě vy. Pokud víte, kdo Vám pomůže, jste to opět vy. Pokud Vám to přijde v něčem složité, nevadí pomůžeme my.
Co stavebnice domu obsahuje
Projektová a montážní dokumentace domu, sendvičové panely základové desky, stěn a střechy stavebního systému EUROPANEL a instalační technologické jádro velikosti 2,8 x 2,5 m s kompletně dokončenou koupelnou jsou základní prvky Vašeho budoucího domu. Nemusíte tak řešit obkladače, instalatéra, topenáře ani elektrikáře. Vše je zahrnuté a zhotovené v instalačním jádru, které Vám přivezeme na místo stavby a napojíme na instalační šachtu pod domem. V jádru je integrovaná i veškerá elektroinstalace a kabeláž pro celý dům. včetně kabelů pro vytápění domu a větrání s rekuperaci. Součástí dodávky stavebnice domu jsou i veškeré těsnící a spojovací prvky, plastová okna s trojskly, vchodové dveře, dřevěné fasádní palubky, střešní krytina, klempířské prvky, stěnové SDK obklady a stropní desky Fermacell.
Jak se dům staví
1. Školení – je součástí dodávky stavebnice domu
Stavebník, který bude provádět stavbu svépomocí bude proškolen o provádění montáže stavebního systému Europanel, konstrukčních detailů a postupů jednotlivých fází stavby domu.
2. Základy domu – nejsou součástí dodávky stavebnice domu
V případě že nechcete řešit základy domu z betonových pasů, je možné provést založení domu na základových zemních vrutech. Odborná firma Vám na základě zkoušky únosnosti zeminy navrhne typ a počet vrutů a provede jejich montáž, která není v ceně dodávky. Na základě dodané projektové dokumentace stavby provedete přípojky inženýrských sítí zakončených instalační šachtou a montáž základových hranolů
3. Montáž instalačního jádra s koupelnou – je součástí dodávky stavebnice domu
Montáž instalačního jádra na základové hranoly, včetně napojení na inženýrské sítě provede dodavatel stavebnice společnost EUROPANEL.
4. Montáž domu svépomocí – není součástí dodávky domu
Další fázi realizace stavby domu provádí stavebník svépomocí pod dozorem společnosti EUROPANEL dle smluveného rozsahu.
Jaké to má výhody
Základy bez bagrování a devastace pozemku. Žádné izolace proti vodě a radonu. Rychlost výstavby. Obálka domu v pasivním standardu. Nízké provozní náklady. Minimalizace stavebních řemesel. Montáž domu svépomocí, Snížená sazba DPH. Profesionální dozor. Nižší cena. Variabilita dispozic. Možnosti rozšíření domu.
Jaké jsou další možnosti
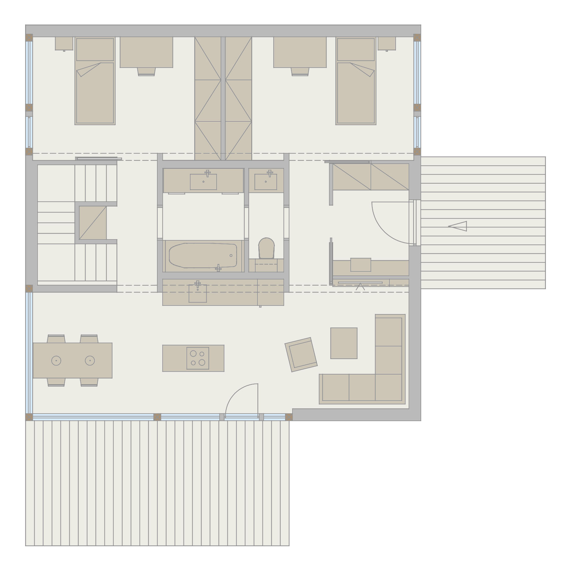
Dodávku stavebnice domu můžeme rozšířit o vestavbu, modulární přístavbu a dům tak tvarově změnit či zvětšit.
V exteriéru můžete přistavět terasu, ozelenit střechu, doplnit střešní terasu, masivní krov nebo pergolu. Osadit fotovoltaické kolektory, připojit přístavbu další místnosti.
V interiéru můžete dům doplnit o nábytkové stěny a měnit tak dispozice domu, nebo rozšířit energetické vybavení domu o podlahové topení, větrání s rekuperací tepla, tepelné čerpadlo a komín.












